Skip to main content
Apollo is approaching—preview what makes this console different. GET THE LOOKBOOK

Washington State DOT

WSDOT1-930917-edited

The Washington State Department of Transportation (WSDOT) 2016 building upgrade marked the move from 1980’s era counter tops with built-in monitoring to modern freestanding workstations. For the first time, WSDOT provides a complete ergonomic suite for users, the capability to house additional hardware and video screens, and easy access to technology for IT technicians. The improvements were long overdue for the Seattle team, who monitor a complex, multi-modal transportation system.

WSDOT at a glance

The Washington State Department of Transportation is the steward of a multi-modal transportation system and responsible for ensuring that people and goods move safely and efficiently. In addition to building, maintaining, and operating the state highway system, WSDOT is responsible for the state ferry system, and works in partnership with others to maintain and improve local roads, railroads and airports, as well as to support alternatives to driving, such as public transportation, bicycles and pedestrian programs.

Operates and maintains 18,600 lane miles of state highways

  • Owns, operates and maintains nearly 3,300 bridge structures
  • Runs the largest ferry system in the nation that moves 24.2 million passengers and 10 million vehicles a year
  • Partners with 31 public transportation systems to provide more than 220 million passenger trips a year
  • Owns three Talgo train sets in the Amtrak Cascades fleet and manages the Palouse River and Coulee City Rail system
  • Manages one of the world’s widest tunneling project and the world’s longest floating bridge project.

Long overdue for an upgrade...

DSC_0877

Control Room Console Criteria

When considering which control room console would best meet their needs, WSDOT sought:

  • a reputable manufacturer
  • a proven record for decade-plus durability
  • ability to house and mount expanded technology
  • comprehensive power and video distribution
  • full sit-to-stand adjustability + environment controls
  • and a cost-competitive asset

Mercury Consoles selected for WSDOT Traffic Management Center

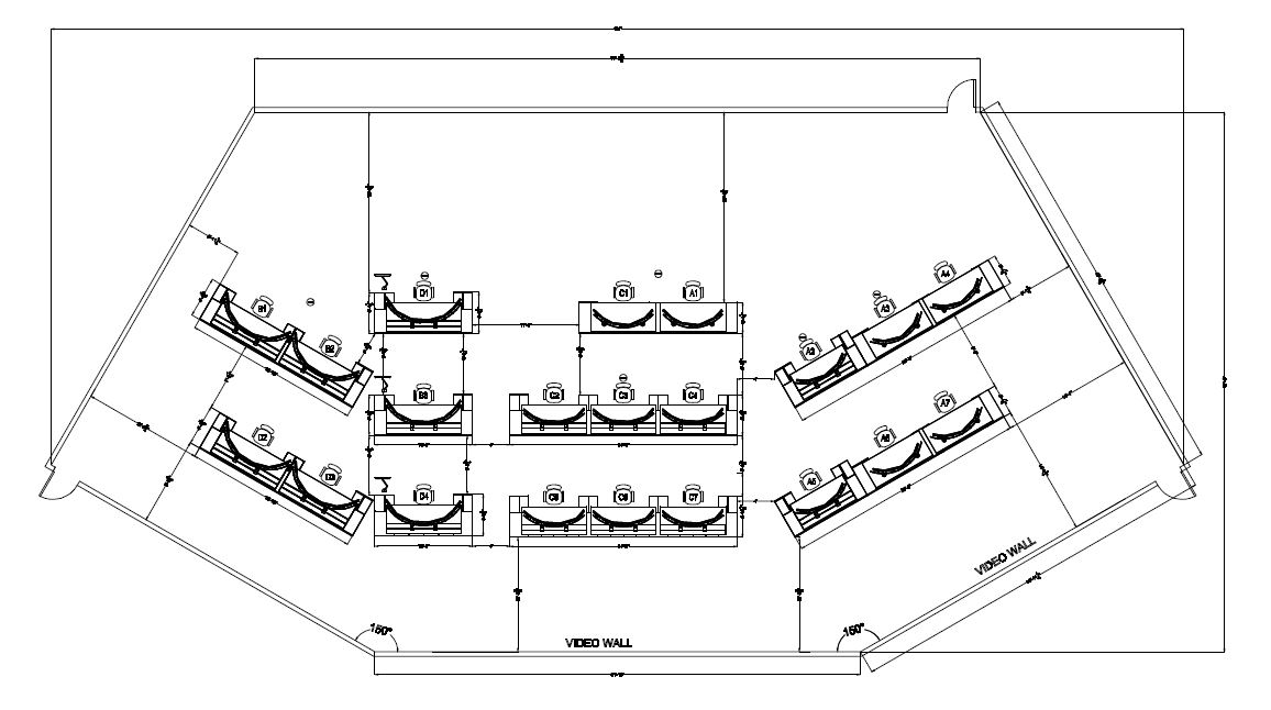
After reviewing multiple market options via a rigorous bid process, the WSDOT team selected Watson Consoles’ Mercury Pro for their Traffic Management Center. In addition to fulfilling their wish list, the linear build gives WSDOT the flexibility to easily reconfigure if future needs require it.

Users benefit from an expansive work surface that accommodates desktop work tools and a unique monitor configuration. The hubs between stations are an ideal landing for a shared monitor. WSDOT keeps sight lines open between teammates and promotes unrestricted view of the centralized monitoring wall by ditching privacy screens. The contemporary style and finishes further bring WSDOT forward and reinforces their reputation as a leading transportation monitoring center.

wsdot3

Learn More

Learn more about future-proof consoles and why Mercury might be just what your control room needs.

If you are in the research phase of a project, be sure to consider: the value of antimicrobial laminates, heating and cooling options for dispatch centers and control rooms, and the truth behind ergonomic edges.