Designing a center that unites multiple public safety agencies in one room requires careful planning, creativity, and collaboration. For this project, our team partnered with the customer to explore a wide range of layouts, refining and reworking until we arrived at the perfect design. The result is a space that keeps police, fire, and 911 working side by side, with the right balance of dedicated zones and cross-agency collaboration.
Project at a Glance
- Multi-Agency Consolidation
- Centralized Supervisor Area
- Primary Challenges: Fixed electrical access, housing large PCs, designing a layout that balances agency zones with collaboration
The Request
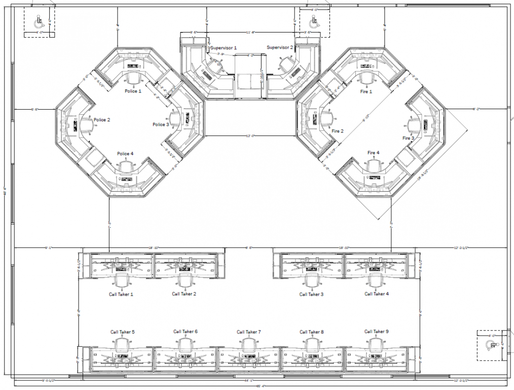
The customer’s goal was clear, they wanted to bring police, fire, and 911 together into a single, uniformed room. At the same time, they needed to preserve the unique workflows of each agency while ensuring the new space encouraged collaboration across departments. Another critical request was the addition of a centralized supervisor area. Supervisors needed clear sightlines across the entire floor to efficiently monitor activity and provide support where it was needed most.
The project also came with technical hurdles. The existing building had fixed electrical access points, limiting where consoles could be placed. On top of that, the agencies were bringing in large PCs that required specialized storage to be integrated directly into the furniture. These requirements meant every square foot of the design had to be carefully considered.
The Solution
Our approach centered on iteration. Working closely with the customer, we tested multiple layouts using Mercury Corner, Command, and Linear Pro Consoles. Each design option was reviewed and adjusted, ensuring it supported departmental needs, promoted cross-agency communication, and worked within the building’s electrical limitations. After multiple rounds, we arrived at a plan that checked every box.
The final layout placed fire and police departments in hubs on either side of the supervisor stations, giving supervisors a central vantage point with clear visibility. Dispatchers were positioned in rows at the far end of the room, creating a natural flow that both separated tasks and supported communication across teams.
Technology integration was also a major part of the solution. To house the large PCs, we incorporated stacking storage above hub-mounted consoles and placed tech cabinets between corner consoles. This distributed equipment efficiently throughout the room without adding bulky storage units that would take up valuable floor space.
The Results
The customer was thrilled with the outcome. The new floor plan provided exactly what they had envisioned, distinct departmental areas that still felt connected. The supervisors appreciated their central location and ability to easily oversee the entire operation. Just as importantly, the integrated tech storage ensured the oversized PCs were placed neatly within the consoles, keeping the room clean, organized, and efficient.
The result was a smarter, stronger center designed to support daily operations while also fostering teamwork and collaboration between agencies.
Products Used
- 9 Mercury Pro Consoles with hub-mounted stacking storage
- 10 Mercury Corner Consoles with team tables and integrated tech storage
Connect with our team and learn how we can help you design your next center upgrade. 
 
     
                       
              