Skip to main content
Apollo is approaching—preview what makes this console different. GET THE LOOKBOOK

Shelby County 911 - Memphis PD

Mercury-Shelby-001

At 46 positions, the Memphis PD communications' team is the largest Public Safety Answering Point in Shelby County, Tennessee. When challenged to move into an alternative space, Shelby County 911 sought a solution that would make the best use of limited square feet AND provide amenities the space previously lacked.

Seeking better use of space

Space planning with conventional 90 degree consoles proved a challenge. The plans revealed that Shelby County would have to sacrifice work surface size, some operators would have to sit at smaller positions, and there wouldn't be enough space for much-needed storage. The Shelby team also realized that technology updates made the 90 degree console design far less effective than it once was. They needed a better solution and were curious about advantages of planning with linear console workstations.

space

This side-by-side space comparison illustrates the downside of planning with 90 degree stations and the challenge that Shelby County needed to overcome.

Which console furniture is best for linear planning?

After evaluating the service reputation, product function, durability, and space-planning solutions of multiple vendors, Shelby County 911 selected Watson Consoles' Mercury workstations.

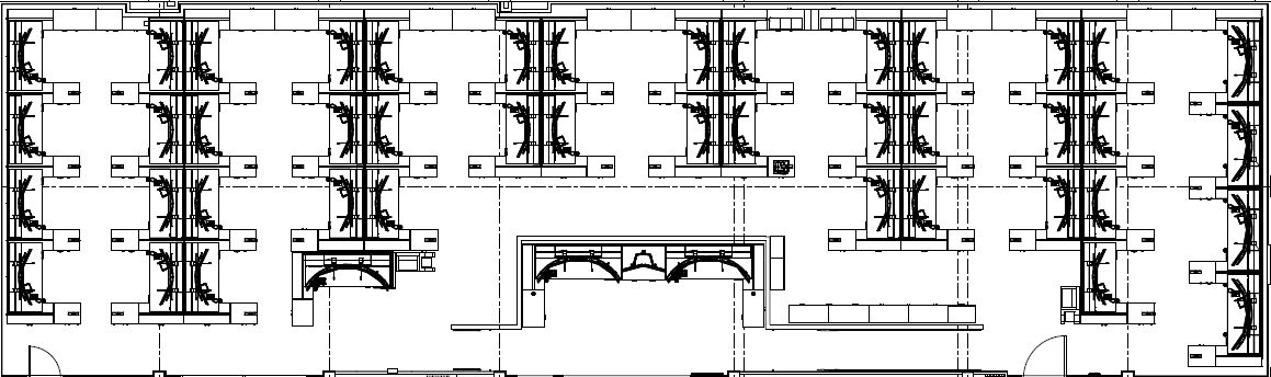
Shelby County's new floor plan shows efficient use of space with gracious aisles, a dedicated supervisor platform, and shared storage along the wall.

Shelby County

Getting more with less

By reclaiming previous "dead space," Shelby made room for lockable personal storage at each station.

  • Secure personal storage is within operator reach
  • Higher cabinets increase sense of privacy
  • Stacked storage creates a sound buffer that boosts operator focus
  • Acrylic upper panels keep sight lines open
  • Flush-mount collapsible coat hooks are within reach of each operator and keep chairs free from interference
  • The status control light rests between stations leaving the array open for multiple monitors
  • Concealed, small-device charging at each operator position provides clutter-free convenience
Mercury-personal storage stack-Shelby

Building up, rather than out, restrains the footprint creep and delivers a feature-rich workstation.

Expansive work surfaces provide extra value

Operators benefit from an expanded work surface. Now there is ample room for desk-top equipment without crowding the dispatcher. Side-by-side training is far more comfortable for both operator and trainer.

Mercury-SideBySideTraining-Shelby

Function + Form

In addition to the functional features, the team responded strongly to the progressive linear design of Mercury.

standing view across room

In cooperation with their Architect consultant, Shelby County selected classic wood-grain cabinets punctuated with sleek grey door faces. The combination strikes the perfect balance for their modern comm center.

Mercury-Shelby002

The dispatch consoles are as sturdy and we thought they would be. We demand a product that will stand up to the 24x7, 365 use. Beside that, they are beautiful and functional as well! The space exceeds our expectations and the operators are very happy with their new workstations.

Raymond A. Chiozza, Director

About Shelby County 911 District

The mission of the Memphis Police Communications Bureau is to provide responsive quality service to the community and to the Memphis Police Department by processing emergency and non-emergency calls for service. We are in partnership with the City of Memphis authorities and our community members to enhance public safety and improve the quality of police services for the benefit of all citizens.

smiling operator

Special Thanks

Many thanks to Raymond Chiozza, Director of Shelby County 911 District, for sharing the images of their new center.