Skip to main content
Apollo is approaching—preview what makes this console different. GET THE LOOKBOOK

Bringing Agencies Together

project-1-5in5 gif

Creating a multi-functional space can be a daunting task, especially when you need to meet the timelines and budgets of multiple agencies coming together. We embraced that challenge for a customer, focusing on enhancing a center that needed to create a joint incident command to go with their communications room and consoles. Through careful consideration and creative problem-solving, our team was able to successfully provide a thoughtful solution for their consoles and collaboration environment.

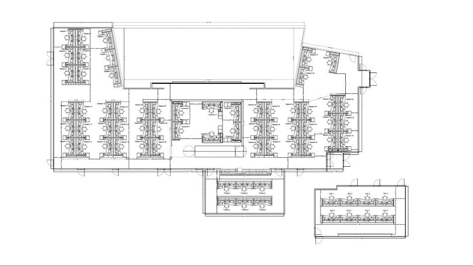
Project At A Glace

  • Public Safety Facility
  • New Construction
  • 83,000 sq ft building
  • 71 Positions
  • Primary Challenges: Multiple agencies, meeting room integrated space, dispatch personal storage solutions, restrictive timeline

The Request

The customer needed a space for effective collaboration between agencies while making each room feel spacious. This involved creating a joint incident command with separate areas for supervisors, meeting areas, and communications, all while ensuring the overall layout was open and inviting. In the communications room, we needed to address storage solutions and work areas to facilitate easy access for both telecommunicators and directors, creating a smooth workflow. To create more usable space, they wanted to bring lockers into the communications room instead of taking up valuable square footage with a separate locker room.

In addition to the design challenges, we faced a tight timeline and a restrictive budget. To meet our deadline and budget, our account manager took a comprehensive approach with the client, focusing on both the functional needs of the agencies and the aesthetic qualities of the furniture.

The Solution

After evaluating the specific requirements for integrating a meeting area in the joint incident command, we selected a fixed-height, 14-foot-long meeting table with a boat shape and integrated power and data. This choice not only fit within budget constraints but also provided a practical solution for group activities. We matched all consoles and tables in a light finish palette, which helped create an open atmosphere while maximizing the available square footage.

For the custom work and storage area in the communications room, we constructed solutions tailored to the room’s specifications, accommodating additional elements like a pillar and a printer and using finish colors similar to those of the consoles. The customer was actively involved in the design process of the work area, specifying where they needed cabinets versus drawers.

To further streamline the space, we eliminated the need for separate lockers by integrating personal storage into the consoles, providing telecommunicators with secure storage right at their workstations without increasing the footprint of the layout.

The Results

The collaboration between our team and the customer resulted in a cohesive and functional environment that met the center’s needs. The customer was thrilled with how well the furniture fit into their designated space, and they expressed excitement about the overall look and feel, which exceeded their expectations. They particularly appreciated the opportunity to communicate their storage needs, knowing those were fulfilled by the same vendor supplying their consoles.

“I enjoyed getting to plan furniture for this space, looking at what they needed functionally. The meeting table was a fun addition you don't see everywhere.” – Kelsey, Account Manager

This project demonstrates the importance of integrating functionality with aesthetic appeal in furniture solutions, illustrating how challenges can lead to innovative outcomes that enhance workplace efficiency and satisfaction. The account manager at Watson helped our customer create multi-functional spaces to optimize the layout of their center.

Products Used

  • 67 Mercury Pro Consoles
  • 4 Mercury Corner Consoles
  • Conference Table
  • Personal Console Integrated Storage
  • Custom Storage Solution


If you’re interested in similar solutions for your center, download our brochure, highlighting furniture solutions that can be tailored to your needs!


DOWNLOAD BROCHURE

project-1-slide-1 project-1-slide-2 project-1-slide-3 project-1-slide-4 project-1-slide-5